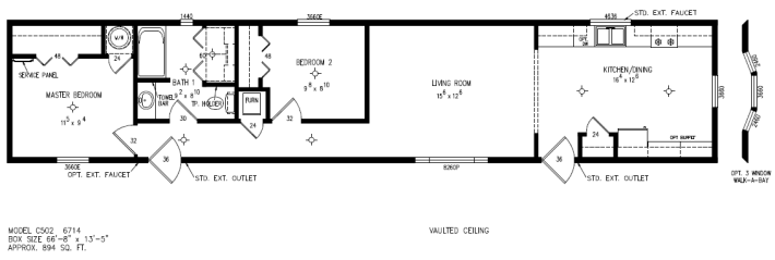
ROYAL CANADIAN MODEL C502 - 2 Bed 1 bath - 894 Sq. Ft.
Back to Royal Canadian Single-Section Index

Also available in PDF
 

 


Back to Royal Canadian Single-Section Index

 

Copyright 2009, The Homark Company Inc.