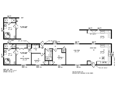
ROYAL AMERICAN MODEL 532 - 3 Bed 2 Bath - 1172 Sq. Ft.
Back to Royal American Single-Section Index

Click to View - Also available in PDF
 

 


Back to Main

 

Copyright 2009, The Homark Company Inc.