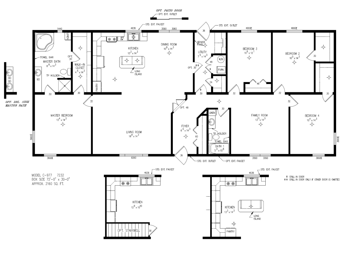
ROYAL CANADIAN MODEL C977 - 4 Bed 2 bath - 2160 Sq. Ft.
Back to Royal Canadian Multi-Section Index

Image not available yet

Artist Rendering - Click to View



Click to View - Also available in PDF

Back to Royal Canadian Multi-Section Index

 

Copyright 2009, The Homark Company Inc.